太陽光発電が標準装備のため、発電の余剰分は売電可能。高断熱、高気密の等級も高いので、熱損失も抑えることが可能な建物性能。
上手に電気量をコントロールし、年間使用量より売電が上回れば光熱費0も夢じゃない!
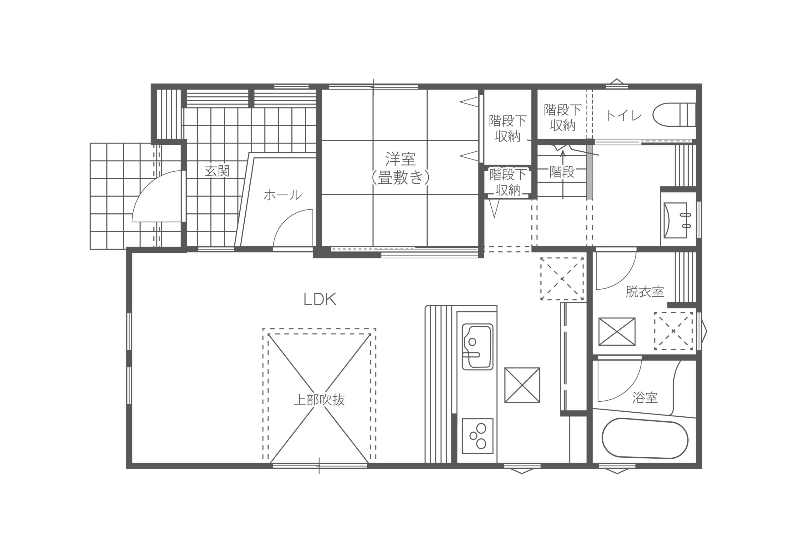
このページでは、福島県内で本体価格1500万~1999万台で建てられるローコストプランのある住宅会社の施工事例と間取りを紹介しています。どのようなものがあるのかチェックしてみてください。
また、こちらのページではローコスト住宅の選び方や、福島県内に対応するおすすめ住宅会社3選も紹介していますので、あわせてご確認ください。
プラン名:ブラーボゼネクト
価格:※公式サイトに記載がありませんでした。

プラン名:コムニ美ファイン
価格:※公式サイトに記載がありませんでした。

プラン名:※公式サイトに記載がありませんでした
価格:1, 500~1, 999万円(税不明)
プラン名:平屋スタイル
価格:1, 700万円~(税不明)
プラン名:GUUUS
価格:1, 636万円(税込)~
プラン名:太陽の恵みの家 サンブレストType3
価格:1, 754.5万円(税込)


住宅を建てる際にかかる3つのコスト「継続費用(ランニングコスト)」「初期費用(イニシャルコスト)」「継続費用(メンテナンスコスト)」ですが、いずれかを抑えたいかを明確にすれば星の数ほどある住宅会社選びもある程度楽になってきますが、ここでは福島県内で抑えたいコスト別のおすすめ住宅会社を紹介します。いずれも四季豊かな福島でいつでも快適に住めるように、高気密高断熱にも対応できるZEHビルダーです。
ロゴスホーム
太陽光発電が標準装備のため、発電の余剰分は売電可能。高断熱、高気密の等級も高いので、熱損失も抑えることが可能な建物性能。
上手に電気量をコントロールし、年間使用量より売電が上回れば光熱費0も夢じゃない!
パパまるハウス
坪単価40万円~建築可能なパパまるプランは、ベーシックプランながら高性能樹脂窓や熱換気システムも標準装備。
その他、ローコストな坪単価のプランがそろっているので、初期費用をおさえたいならピッタリの住宅会社
イシカワ
法律で10年と定められている構造・防水の保証が初期保証で20年のイシカワ。定期的にメンテナンスすれば、最長60年※という充実の保証。
給湯器やシステムキッチンなどの設備は10年保証、白アリも最大30年保証※で安心!
選定条件
SUUMOにて「ローコスト住宅 福島」と検索した際に表示される住宅会社のうち、公式HPで施工事例と価格を表示し、ZEHビルダー登録のある住宅会社の中から以下の条件で選出
※選定や情報については2023年6月30日時点のものとなります。
ランニングコスト:建築後のランニングコストを具体的な金額で紹介している1社…ロゴスホーム
イニシャルコスト:坪単価(公式サイトの情報を基に編集チーム調べ)が最安値の1社…パパまるハウス
メンテナンスコスト:保証対応の設置項目の多さと構造保証が最長の1社…イシカワ